As personal car use and ownership declines, what does the future hold for underused parking garages? Repurposing parking garages as micro housing is one solution that has come forward.
Historical photos of cities contain structures that might seem curious to young viewers: rows of pay phones at busy intersections; emergency call boxes on street corners to summon fire or police. Early cityscape photos show horse stables, hitching posts and watering troughs—essential urban infrastructure for the time.
When future generations view photos of today’s cities, will parking garages also be seen as historical oddities?

A group of students at the Savannah College of Art and Design School of Building Arts suspects so. To get ahead of the curve, they created the SCADPad, a complete micro-living unit that transforms parking garage spaces into housing units.
SCADPad responds to key demographic trends shaping cities: individual car use is declining, public car parking structures are being used less, and young professionals are seeking affordable downtown accommodation to fit their social lifestyles.
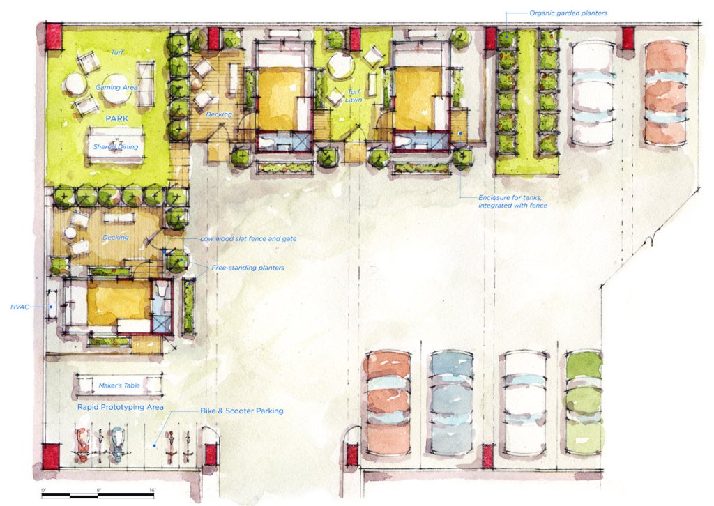
Occupying 12.5 square meters (135 square feet), the size of a single US parking garage space, SCADPads are designed to maximize the potential of surplus car parking spaces and provide affordable housing options in downtown areas.
Each SCADPad unit contains a kitchen area complete with stove, sink, refrigerator, a bathroom with shower, and sleeping and living areas. Shared communal areas have been designed in neighboring spaces to cater to the social desires of young residents.
The project represents a shift in both urban living preferences and historical perspective. As Christian Sottile, Dean of the SCAD School of Building Arts, notes:
“One hundred years ago, cities were proliferated with horse stables and liveries. So, if we imagine at the end of the 21st century, the parking structure as we know it today will be a building type of the past. This project cracks open an enormous question about what comes next in adaptive reuse.”
For 44 of the most innovative urban repurposing projects from 17 countries check out the Reprogramming the City book.





Repurposing Book and Toolkit: Reprogramming the City and How To [PDF Combo]
Adaptive Reuse Workbook: Transforming Cities by Repurposing [PRINT VERSION]
How to Reprogram the City Toolkit: Adaptive Reuse, Repurposing Urban Objects [PDF VERSION]
Reprogramming the City: Adaptive Reuse and Urban Repurposing [E-BOOK version]